Save
Ask
Tour
Hide
$289,900
17 Days On Site
11676 River Point LaneTuscaloosa, AL 35405
For Sale|Single Family Residence|Active
3
Beds
2
Total Baths
2
Full Baths
1,650
SqFt
$176
/SqFt
2025
Built
Subdivision:
River Point
County:
Tuscaloosa
Listing courtesy of Shelley Andoe of HERS REAL ESTATE
Call Now: (205) 342-3940
Is this the listing for you? We can help make it yours.
(205) 342-3940

Save
Ask
Tour
Hide
Mortgage Calculator
Monthly Payment (Est.)
$1,323Calculator powered by Showcase IDX, a Constellation1 Company. Copyright ©2025 Information is deemed reliable but not guaranteed.
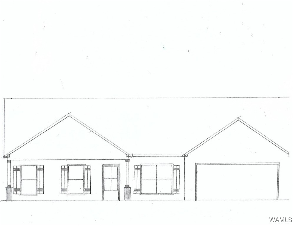
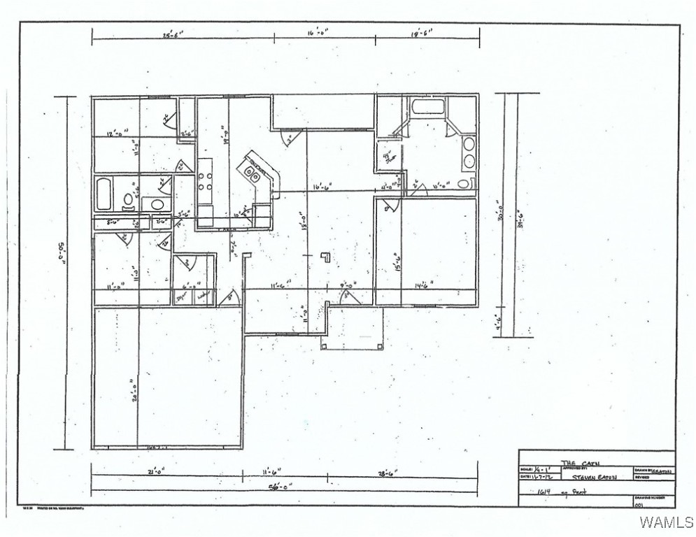
NEW CONSTRUCTION under $300K with a community boat landing on Black Warrior River & wooded lot! Bring your boats and jet skis!! 3 bedroom, granite countertop, solid surface flooring, stained tongue & groove ceiling, ceiling fans in all rooms, HUGE walk in laundry room & pantry, formal dining room, tiled kitchen backsplash with granite countertops, eat in bar, stainless steel appliances, tiled shower and soaker tub in the primary bathroom. Call today for custom design options. Additional lots and plans to choose from.
Save
Ask
Tour
Hide
Listing Snapshot
Price
$289,900
Days On Site
17 Days
Bedrooms
3
Inside Area (SqFt)
1,650 sqft
Total Baths
2
Full Baths
2
Partial Baths
N/A
Lot Size
0.5 Acres
Year Built
2025
MLS® Number
171344
Status
Active
Property Tax
N/A
HOA/Condo/Coop Fees
N/A
Sq Ft Source
N/A
Friends & Family
Recent Activity
| 2 weeks ago | Price changed to $289,900 | |
| 2 weeks ago | Listing updated with changes from the MLS® | |
| 2 weeks ago | Listing first seen on site |
General Features
Acres
0.5
Attached Garage
Yes
Foundation
Slab
Garage
Yes
Garage Spaces
2
Levels
One
Parking
AttachedConcreteDrivewayGarageGarage Door Opener
Pets
Yes
Property Condition
Under ConstructionNew Construction
Property Sub Type
Single Family Residence
Security
Smoke Detector(s)
Sewer
Septic Tank
SqFt Total
1650
Style
Other
Water Source
Public
Interior Features
Appliances
DishwasherElectric OvenElectric RangeElectric Water HeaterDisposalMicrowaveRange HoodWater Heater
Basement
Concrete
Cooling
Heat PumpCeiling Fan(s)Central AirDualElectric
Fireplace Features
None
Flooring
Hardwood
Heating
CentralElectricHeat Pump
Interior
Breakfast BarCeiling Fan(s)Granite CountersKitchen IslandPantrySoaking TubVaulted Ceiling(s)Walk-In Closet(s)Master Downstairs
Laundry Features
InsideMain LevelLaundry Room
Window Features
Double Pane WindowsShutters
Save
Ask
Tour
Hide
Exterior Features
Construction Details
BrickFrameVinyl Siding
Fencing
None
Lot Features
Wooded
Patio And Porch
CoveredPorch
Pool Features
None
Roof
CompositionShingle
Waterfront Features
River Access
Windows/Doors
Double Pane WindowsShutters
Community Features
Association Amenities
Boating
Financing Terms Available
CashConventionalFHAUSDA LoanVA Loan
MLS Area
(11) South Tuscaloosa County
Roads
Paved
Schools
School District
Unknown
Elementary School
Englewood
Middle School
Hillcrest Jr
High School
Hillcrest
Listing courtesy of Shelley Andoe of HERS REAL ESTATE
Listing information is provided by Participants of the West Alabama MLS. IDX information is provided exclusively for personal, non-commercial use, and may not be used for any purpose other than to identify prospective properties consumers may be interested in purchasing. Information is deemed reliable but not guaranteed. Copyright 2025, West Alabama MLS.
Last checked: 2025-10-24 03:55 AM UTC
Listing information is provided by Participants of the West Alabama MLS. IDX information is provided exclusively for personal, non-commercial use, and may not be used for any purpose other than to identify prospective properties consumers may be interested in purchasing. Information is deemed reliable but not guaranteed. Copyright 2025, West Alabama MLS.
Last checked: 2025-10-24 03:55 AM UTC
Neighborhood & Commute
Source: Walkscore
Disclosure: Community information and market data powered by Constellation Data Labs. Information is deemed reliable but not guaranteed.
Save
Ask
Tour
Hide
Interested in this home? Reach out!
"*" indicates required fields
Did you know? You can invite friends and family to your search. They can join your search, rate and discuss listings with you.