1405 22nd AvenueTuscaloosa, AL 35401




Mortgage Calculator
Monthly Payment (Est.)
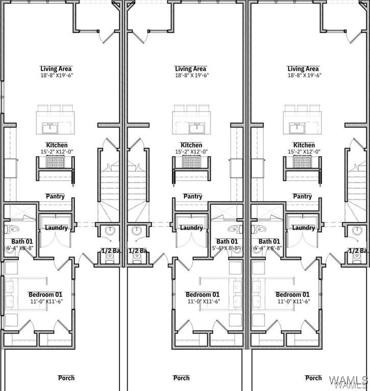
$3,148Now under construction with completion expected in Summer 2026, 1405 22nd Avenue presents a rare opportunity for brand-new living just minutes from The University of Alabama. This thoughtfully designed 3-bedroom, 3.5-bath townhome showcases an open-concept floor plan with durable LVP flooring and high-end finishes throughout. The kitchen will be outfitted with a gas range, while the main-level master suite features a walk-in closet and a walk-in shower. Upstairs, two additional bedrooms each include private baths, offering convenience and privacy. With its unbeatable proximity to UA, this residence is perfect for students, investors, or anyone looking for a stylish, low-maintenance home near campus. Photos are of a similar unit across the street; finishes and layout will vary slightly.
| 3 weeks ago | Listing first seen on site | |
| 3 weeks ago | Listing updated with changes from the MLS® |
Listing information is provided by Participants of the West Alabama MLS. IDX information is provided exclusively for personal, non-commercial use, and may not be used for any purpose other than to identify prospective properties consumers may be interested in purchasing. Information is deemed reliable but not guaranteed. Copyright 2025, West Alabama MLS.
Last checked: 2025-10-24 05:51 AM UTC
Interested in this home? Reach out!
"*" indicates required fields
Did you know? You can invite friends and family to your search. They can join your search, rate and discuss listings with you.