1403 22nd AvenueTuscaloosa, AL 35401




Mortgage Calculator
Monthly Payment (Est.)
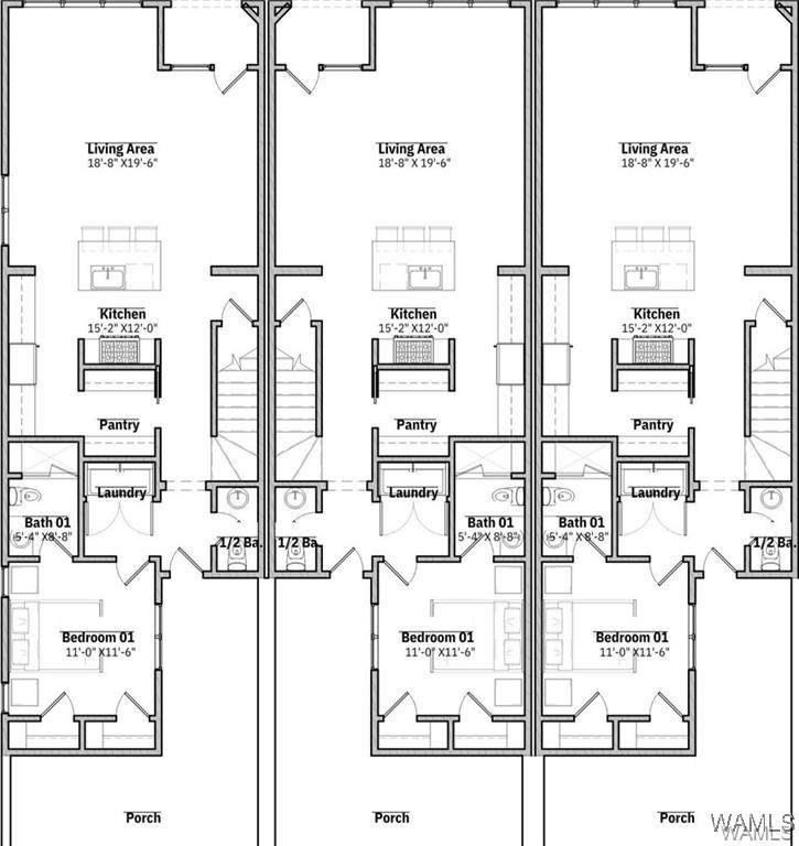
$3,148Currently under construction and set for completion in Summer 2026, 1403 22nd Avenue will deliver brand-new construction just minutes from The University of Alabama. This 3-bedroom, 3.5-bath townhome offers an open-concept design with durable LVP flooring and stylish modern finishes throughout. The kitchen will feature a gas range, while the main-level master suite includes a spacious walk-in closet and a beautiful walk-in shower. Upstairs, two additional bedrooms each include private baths, providing comfort and privacy. With its prime location near UA and low-maintenance lifestyle, this home is a rare opportunity for students, investors, or anyone seeking a new residence close to campus. Photos shown are of a similar unit across the street; finishes and floor plan will differ slightly.
| 3 weeks ago | Listing first seen on site | |
| 3 weeks ago | Listing updated with changes from the MLS® |
Listing information is provided by Participants of the West Alabama MLS. IDX information is provided exclusively for personal, non-commercial use, and may not be used for any purpose other than to identify prospective properties consumers may be interested in purchasing. Information is deemed reliable but not guaranteed. Copyright 2025, West Alabama MLS.
Last checked: 2025-10-24 05:51 AM UTC
Interested in this home? Reach out!
"*" indicates required fields
Did you know? You can invite friends and family to your search. They can join your search, rate and discuss listings with you.